免费定制产品方案 预约实地考察
- 了解需求确定方案
- 签订合同如期生产
- 配送安装指导操作
- 免费培训长期售后
135-2505-6999

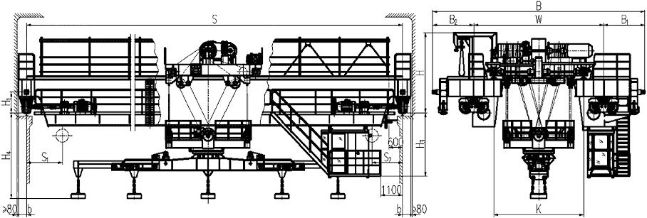
本起重机带有可旋转、又可伸缩的电磁挂梁,用于钢厂、船厂、港口、堆场和仓储等室内或露天的固定跨间,装卸及搬运钢板、型钢、盘卷等物料。特别适用于吊运不同规格且需水平旋转的场合,能够根据所吊物料的规格(不同厚度、长度、张数等)和重量,电动调整电磁铁间距及无级调节电磁铁磁力。根据用户要求可提供:各机构的调速(1:10或更大)、超载及报警、遥控、PLC控制及故障检测、显示、记录和打印系统等。 (以下参数为室内用)
The crane has slewing telescopic electromagnetic carrier-beam;is applicable to the fixed span at indoors or outdoors of steel mill,shipyard,port,yard and storage,etc.It is used for loading,unlo ading and carrying steel plate,profile steel,and spool.etc.It is especially applica ble to lift material of different specifications and which needs horizontal rotation.The spacing of electromag net can be adiusted electrically and magnetic force of electromagnet can be adjusted through infinitely variable control according to the specifications(different thickness,length and pieces,etc.)and weight of the lifted material.The followings can be supplied according to the user’s requirements:speed governing(1:10 or larger)of the mechanisms,overload&warning,remote control,PLC control,failure de tection,display,record and printing system,etc.(the data below is used for indoor).


实力保障 年产销97000余台
现有员工3100人,占地68万余平方米,拥有资产12.8亿元,480余家销售服务机构辐射国内外,各类加工设备1600余台(套)品牌保障 重机协会副理事长单位
已获部级、省级120余项荣誉称号,产品畅销全国30多个省市自治区与军工、核电、航天等国企集团建立了良好的业务关系质量保障 百道质检工序专人专职
完善的质量体系、严格的管理制度,已通过GB/T19001/ISO9001质量管理体系,GB/T24001/ISO14001环境管理体系等服务保障 售后24小时快速响应
按照合同要求为售出的设备进行安装、调试和培训买方技术人员,7*24小时专职客服快速响应服务,快速解决使用难题免费定制产品方案 预约实地考察
全国统一服务热线:
135-2505-6999
扫一扫
关注我们
全国免费服务热线
135-2505-6999