免费定制产品方案 预约实地考察
- 了解需求确定方案
- 签订合同如期生产
- 配送安装指导操作
- 免费培训长期售后
135-2505-6999
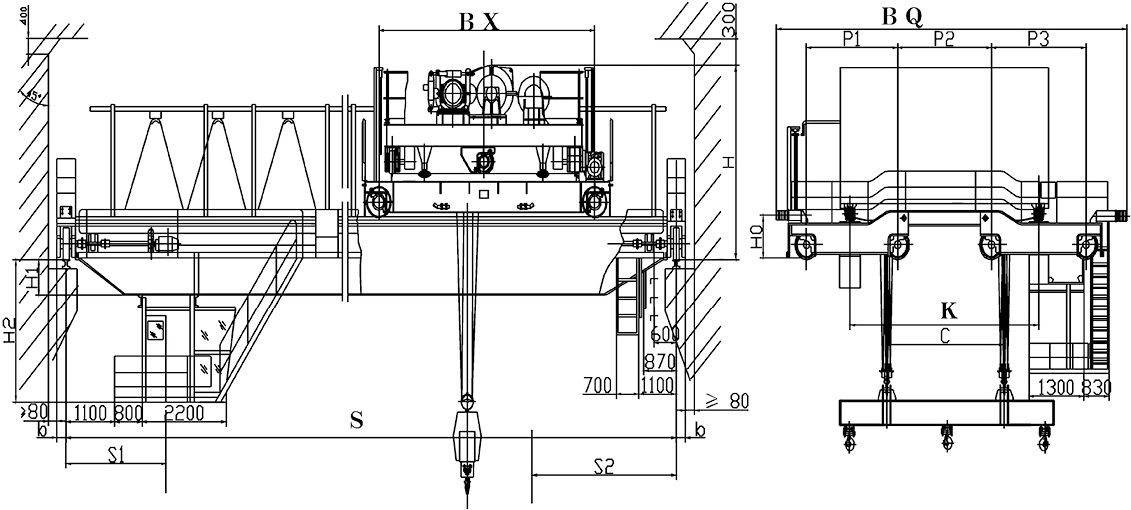
吊钩桥式起重机是目前应用较为广泛的起重机械,其主要由箱形桥架、起重小车、大车运行机构和电气控制系统组成。取物装置是吊钩。
主梁上面铺设有轨道,供起重小车沿主梁方向作横向移动。主梁与箱型端梁焊接而成,端梁中间布置有接头,螺栓或销轴连接,供桥架分拆运输。
操作方式设有地面手柄、无线遥控和司机室三种操作形式。驾驶室有开式、闭式两种,内有可调式座椅,底板铺设绝缘垫,窗玻璃采用钢化玻璃,可根据用户要求配置冷暖空调、讯响器、对讲机等物品。
起重机可配挂马达抓斗、电磁吸盘等取物装置,满足吊运多种类型物料的需求。
起重机工作级别A3~A7,常用起重量为3~250t。适宜在环境温度-20℃~40℃,相对湿度不大于85%的工厂、仓库及货场等处作装卸吊运工作,禁止在易燃、易爆以及充满腐蚀性气体的环境中工作。



实力保障 年产销97000余台
现有员工3100人,占地68万余平方米,拥有资产12.8亿元,480余家销售服务机构辐射国内外,各类加工设备1600余台(套)品牌保障 重机协会副理事长单位
已获部级、省级120余项荣誉称号,产品畅销全国30多个省市自治区与军工、核电、航天等国企集团建立了良好的业务关系质量保障 百道质检工序专人专职
完善的质量体系、严格的管理制度,已通过GB/T19001/ISO9001质量管理体系,GB/T24001/ISO14001环境管理体系等服务保障 售后24小时快速响应
按照合同要求为售出的设备进行安装、调试和培训买方技术人员,7*24小时专职客服快速响应服务,快速解决使用难题免费定制产品方案 预约实地考察
全国统一服务热线:
135-2505-6999
扫一扫
关注我们
全国免费服务热线
135-2505-6999