免费定制产品方案 预约实地考察
- 了解需求确定方案
- 签订合同如期生产
- 配送安装指导操作
- 免费培训长期售后
135-2505-6999

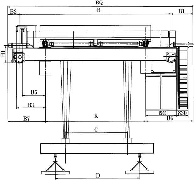
注:
1、进入司机室的走台入口方式分为:端入、侧入、顶入。
2、起重量包括挂梁重量。
3、起重机总重不包括挂梁重量。
4、挂梁上下吊点距C、D可根据用户要求确定,表中尺寸仅供参考。
Note:
1.The direction of platform door to the driver,s cap is side,end and top.
2.The lifting capacity includes the weight of the carrier-beam.
3.The total weight does’t include the weight of the carrier-beam.
4.The value of C and D are depended on the requirements



实力保障 年产销97000余台
现有员工3100人,占地68万余平方米,拥有资产12.8亿元,480余家销售服务机构辐射国内外,各类加工设备1600余台(套)品牌保障 重机协会副理事长单位
已获部级、省级120余项荣誉称号,产品畅销全国30多个省市自治区与军工、核电、航天等国企集团建立了良好的业务关系质量保障 百道质检工序专人专职
完善的质量体系、严格的管理制度,已通过GB/T19001/ISO9001质量管理体系,GB/T24001/ISO14001环境管理体系等服务保障 售后24小时快速响应
按照合同要求为售出的设备进行安装、调试和培训买方技术人员,7*24小时专职客服快速响应服务,快速解决使用难题免费定制产品方案 预约实地考察
全国统一服务热线:
135-2505-6999
扫一扫
关注我们
全国免费服务热线
135-2505-6999