免费定制产品方案 预约实地考察
- 了解需求确定方案
- 签订合同如期生产
- 配送安装指导操作
- 免费培训长期售后
135-2505-6999


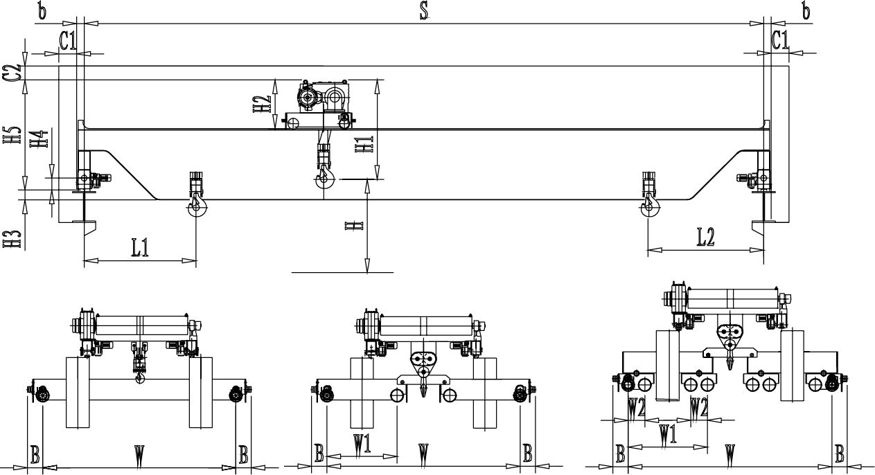
H-起升高度 Hoisting height
V1-起升速度 Hoisting speed
V2-小车运行速度 Traveling speed of trolley
V3-大车运行速度 Traveling speed of crane
L1-起重机左*限 Left limit of crane
L2-起重机右*限 Right limit of crane
C1-起重机两端*限 Minimum limit of both ends
C2-起重机顶部*限 Minimum limit of top of crane
S-起重机跨度 Crane span
H1-起重机小车钩心到顶部的距离 Distance between core of hook and its top
H2-起重机小车的高度 Height of trolley
H3-起重机底部到大车轨道面的距离 Distance between the bottom of crane and crane rail plane
H4-起重机缓冲器到大车轨道面的距离 Distance between buffer of crane and crane rail plane
H5-起重机顶部到大车轨道面的距离 Distance between the top of crane and crane rail plane
W-起重机外两个车轮之间的距离 Distance between two outmost wheels of crane
W1-起重机一角外两个车轮之间的距离 Distance between two outmost wheels of one corner of crane
W2-起重机台车两个车轮之间的距离 Distance between two wheels of trolley
B-起重机外车轮距离缓冲器端部之间的距离 Distance from the outmost wheel to ends of buffer
b-起重机端部距离大车轨道之间的距离 Distance from ends to rail of crane
G-起重机整车的重量 Overall weight of crane
K-起重机大轮压 Maximum wheel pressure of crane
P-起重机总的功率 Total power of crane
选型说明
1、本产品系列表仅列出了常用的基本的规格起重机,工作级别为A5(FEM 2m)时的标准跨度,没有副钩的室内用起重机。客户根据需要可以提出相应的要求。
2、本系列也可以增加副起重机构,也可以增加轻载时速度加倍的设置,一般主副的设置为4:1,也可以根据客户的要求设定。囚设置副钩则起重机的总重及轮压会有所增加。
3、表中的尺寸,重量,轮压供客户订货时参考,如果客户的需要条件发生变化,如工作级别,速度,起升高度有变化时,相应的参数,尺寸,重量,轮压等都会发生变化,实际的参数,质量,轮压以合同的要求为准。
4、表中列出的起升速度,大小车速度为标准值,可以根据客户的需求做相应的调整。
5、技术参数及尺寸会因为技术的改进或者升级有所变化,如有疑问的话可以和公司技术部联系。

















实力保障 年产销97000余台
现有员工3100人,占地68万余平方米,拥有资产12.8亿元,480余家销售服务机构辐射国内外,各类加工设备1600余台(套)品牌保障 重机协会副理事长单位
已获部级、省级120余项荣誉称号,产品畅销全国30多个省市自治区与军工、核电、航天等国企集团建立了良好的业务关系质量保障 百道质检工序专人专职
完善的质量体系、严格的管理制度,已通过GB/T19001/ISO9001质量管理体系,GB/T24001/ISO14001环境管理体系等服务保障 售后24小时快速响应
按照合同要求为售出的设备进行安装、调试和培训买方技术人员,7*24小时专职客服快速响应服务,快速解决使用难题免费定制产品方案 预约实地考察
全国统一服务热线:
135-2505-6999
扫一扫
关注我们
全国免费服务热线
135-2505-6999